Call Us
(239) 394 - 2500
MarcoIslandRealEstate.com
Home
About Us
For Sale
Floor Plans
Drone Video
Contact us
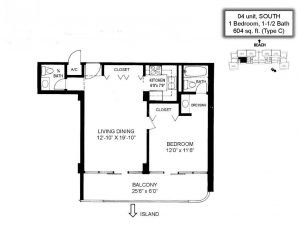
floorplan-04S
Home
floorplan-04S